





















Ref. 3199c
Ubicación idílica: Finca de piedra natural Andratx
1.475.000 €
Descripción
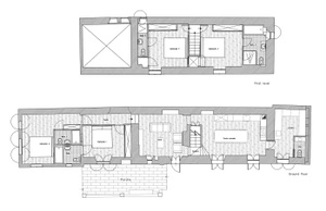
Esta hermosa finca de piedra natural, completamente renovada recientemente, cerca del preciado pueblo de Andratx en el suroeste de Mallorca, está situada en una parcela de aprox. 3.500 m2 orientada al oeste y ofrece una superficie construida de 280 m2. La propiedad ofrece el salón, una cocina totalmente equipada con comedor, una coladuria, cuatro dormitorios y cinco baños. Maravillosas terrazas abiertas y cubiertas, una zona de barbacoa, una piscina con casa de piscina con baño y aseo y tres plazas de aparcamiento completan la oferta.
Al pueblo está a sólo 5 minutos en coche, al preciado puerto Port
Andratx con su precioso paseo marítimo está a unos 10 minutos y también
al campo de golf “Golf de Andratx” en Camp de Mar. El centro de la
ciudad de Palma de Mallorca se encuentra a unos 45 minutos con el coche.
Características adicionales:
Cocina totalmente equipada, comedor, armarios empotrados, chimenea, aire
acondicionado frio/calor, casa de piscina con vestuario y aseo,
coladuria, barbacoa, jardín, piscina, parking, ventanas de madera con
doble acristalamiento.
Ubicación
Puerto Andratx es uno los más elitistas lugares en Mallorca, pertenece
al municipio de Andratx y se ubica en el preciado suroeste de la isla.
El encantador puerto y la marina con su famoso paseo lleno de nobles
restaurantes, bares y tiendas obligan para detenerse. Alrededor del
paseo situado en las montañas se encuentran las famosas urbanizaciones
como La Mola, Cala Marmacen, Cala Llamp, Montport, Can Borras y Cala
Moragues con una multitud de chalets de lujo y vistas fantásticas al
puerto y al mar, varias residencias con apartamentos de gran valor de
estilo Mediterráneo o contemporáneo. No hay que olvidar las fantásticas
fincas y casas de campo en los campos alrededor del puerto. Al preciado
campo de golf Golf D`Andratx y la hermosa playa de arena en Camp de Mar
se llega en solo 5 minutos con el coche. Los inmediatos pueblos como
Andratx, San Telmo (Sant Elm), S`Arracco y Sa Coma también son zonas muy
codiciadas para residentes y non-residentes. Una variedad de otros
campos de golf, playas y bahías se encuentran en poca distancia de
Puerto Andratx y al centro de Palma de Mallorca se llega en
aproximadamente 40 min. con el coche.
Características
Cocina
Armarios
Calefacción
Aire acondicionado
Piscina
Habitaciones adicionales
Jardín
Plaza de aparcamiento
Ventanas
Mapa
Certificado energético
| Emisión kWh / m por año | |
|
50.0
|
|