























Ref. 21010
Impresionante mansion en Orient
Precio de venta
4.990.000 €
Descripción
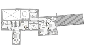
Esta finca única se encuentra en Orient, en el corazón de la sierra de Tramuntana, cerca del pueblo de Bunyola al oeste y del pueblo de Alaró al este. Hay montañas majestuosas, bosques intactos con cascadas que se contraen con campos de olivos y vinos. En la parcela de 570.000 m2 encontrará actualmente las ruinas de la finca del siglo XVII. Ya existe un proyecto aprobado y una licencia de construcción para una mansión con hall de entrada, sala de estar, cocina, 5 dormitorios, 6 baños y varias terrazas enormes cubiertas y descubiertas. La construcción comenzará en breve y se espera que esté terminada para fines de 2020. Para más información, contáctenos.
Características
Asientos al aire libre
Terraza
Mapa
Certificado energético
| Emisión kWh / m por año | |
|
50.0
|
|